
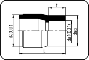
| Dimension | Detail |
da(OD)
mm
|
da1(OD1)
mm
|
L
mm
|
dsp
mm
|
t
mm
|
p
bar
|
Weight |
| 25/20 | 25/20 - MOP 16 bar | 25 | 20 | 39 | 30 | 16 | 10 | 0.011 |
| 32/20 | 32/20 - MOP 16 bar | 32 | 20 | 44,5 | 29 | 16 | 10 | 0.014 |
| 32/25 | 32/25 - MOP 16 bar | 32 | 25 | 45 | 34,5 | 17 | 10 | 0.018 |
| 40/20 | 40/20 - MOP 16 bar | 40 | 20 | 50 | 29,5 | 15 | 10 | 0.022 |
| 40/25 | 40/25 - MOP 16 bar | 40 | 25 | 50 | 34,5 | 17 | 10 | 0.024 |
| 40/32 | 40/32 - MOP 16 bar | 40 | 32 | 50 | 42,8 | 19 | 10 | 0.028 |
| 50/20 | 50/20 - MOP 16 bar | 50 | 20 | 55,5 | 29,4 | 16 | 10 | 0.033 |
| 50/25 | 50/25 - MOP 16 bar | 50 | 25 | 55 | 34,7 | 18 | 10 | 0.034 |
| 50/32 | 50/32 - MOP 16 bar | 50 | 32 | 55 | 42,5 | 18,1 | 10 | 0.037 |
| 50/40 | 50/40 - MOP 16 bar | 50 | 40 | 54,5 | 52,8 | 26 | 10 | 0.043 |
| 63/25 | 63/25 - MOP 16 bar | 63 | 25 | 64 | 34,8 | 18 | 10 | 0.054 |
| 63/32 | 63/32 - MOP 16 bar | 63 | 32 | 65 | 42,9 | 18,5 | 10 | 0.059 |
| 63/40 | 63/40 - MOP 16 bar | 63 | 40 | 64,5 | 52,8 | 21,5 | 10 | 0.065 |
| 63/50 | 63/50 - MOP 16 bar | 63 | 50 | 65 | 64,8 | 25 | 10 | 0.076 |
| 75/63 | 75/63 - MOP 16 bar | 75 | 63 | 64 | 81,5 | 29 | 10 | 0.105 |
| 90/63 | 90/63 - MOP 16 bar | 90 | 63 | 87,5 | 81,5 | 29 | 10 | 0.182 |
| 90/75 | 90/75 - MOP 16 bar | 90 | 75 | 86,6 | 93 | 32 | 10 | 0.184 |
| 110/63 | 110/63 - MOP 10 bar | 110 | 63 | 90 | 81,2 | 29 | 10 | 0.252 |
| 110/90 | 110/90 - MOP 10 bar | 110 | 90 | 88 | 113 | 37 | 10 | 0.293 |

蘇公網(wǎng)安備 32050502000597號(hào)