首頁 》 產品展示 》 傳導.管路 》 PVDF管道系統(tǒng)
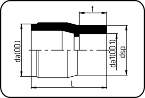
| Dimension | Detail |
da(OD)
mm
|
da1(OD1)
mm
mm
|
L
mm
|
dsp
mm
|
t
mm
|
p
bar
|
Weight |
| 25/16 | 25/16 - MOP 20 bar | 25 | 16 | 40 | 24 | 15 | 20 | 0.02 |
| 25/16 | 25/20 - MOP 20 bar | 25 | 20 | 40 | 29 | 15,7 | 20 | 0.022 |
| 32/20 | 32/20 - MOP 20 bar | 32 | 20 | 44 | 29 | 16,5 | 20 | 0.03 |
| 32/25 | 32/25 - MOP 20 bar | 32 | 25 | 44 | 35 | 17,6 | 20 | 0.035 |
| 40/20 | 40/20 - MOP 20 bar | 40 | 20 | 49 | 29 | 16,3 | 20 | 0.043 |
| 40/25 | 40/25 - MOP 20 bar | 40 | 25 | 49,5 | 35 | 17,6 | 20 | 0.046 |
| 40/32 | 40/32 - MOP 20 bar | 40 | 32 | 49 | 43 | 20,2 | 20 | 0.053 |
| 50/20 | 50/20 - MOP 20 bar | 50 | 20 | 55 | 29 | 16,2 | 20 | 0.064 |
| 50/25 | 50/25 - MOP 20 bar | 50 | 25 | 55 | 35 | 18 | 20 | 0.068 |
| 50/32 | 50/32 - MOP 20 bar | 50 | 32 | 55 | 43 | 20 | 20 | 0.075 |
| 50/40 | 50/40 - MOP 20 bar | 50 | 40 | 55 | 52 | 25 | 20 | 0.085 |
| 63/25 | 63/25 - MOP 20 bar | 63 | 25 | 64 | 35 | 18,4 | 20 | 0.107 |
| 63/32 | 63/32 - MOP 20 bar | 63 | 32 | 64,5 | 43 | 20,3 | 20 | 0.115 |
| 63/40 | 63/40 - MOP 20 bar | 63 | 40 | 64 | 52 | 21,4 | 20 | 0.126 |
| 63/50 | 63/50 - MOP 20 bar | 63 | 50 | 64 | 64,5 | 24,6 | 20 | 0.148 |
| 75/63 | 75/63 - MOP 20 bar | 75 | 63 | 64 | 81 | 28,6 | 20 | 0.209 |
| 90/63 | 90/63 - MOP 20 bar | 90 | 63 | 87 | 81 | 29 | 20 | 0.36 |
| 90/75 | 90/75 - MOP 20 bar | 90 | 75 | 87 | 92 | 33 | 20 | 0.359 |
| 110/63 | 110/63 - MOP 20 bar | 110 | 63 | 89 | 81 | 29,3 | 20 | 0.484 |
| 110/90 | 110/90 - MOP 20 bar | 110 | 90 | 87 | 113 | 35,5 | 20 | 0.575 |

蘇公網安備 32050502000597號